Attraktives Reihenmittelhaus mit drei Wohnungen! Voll vermietet und in sehr gutem Zustand
Kaufpreis
339.000 €
Wohnfläche
221 m²
Grundstück
342 m²
Lage
Leopoldshöhe
Beschreibung
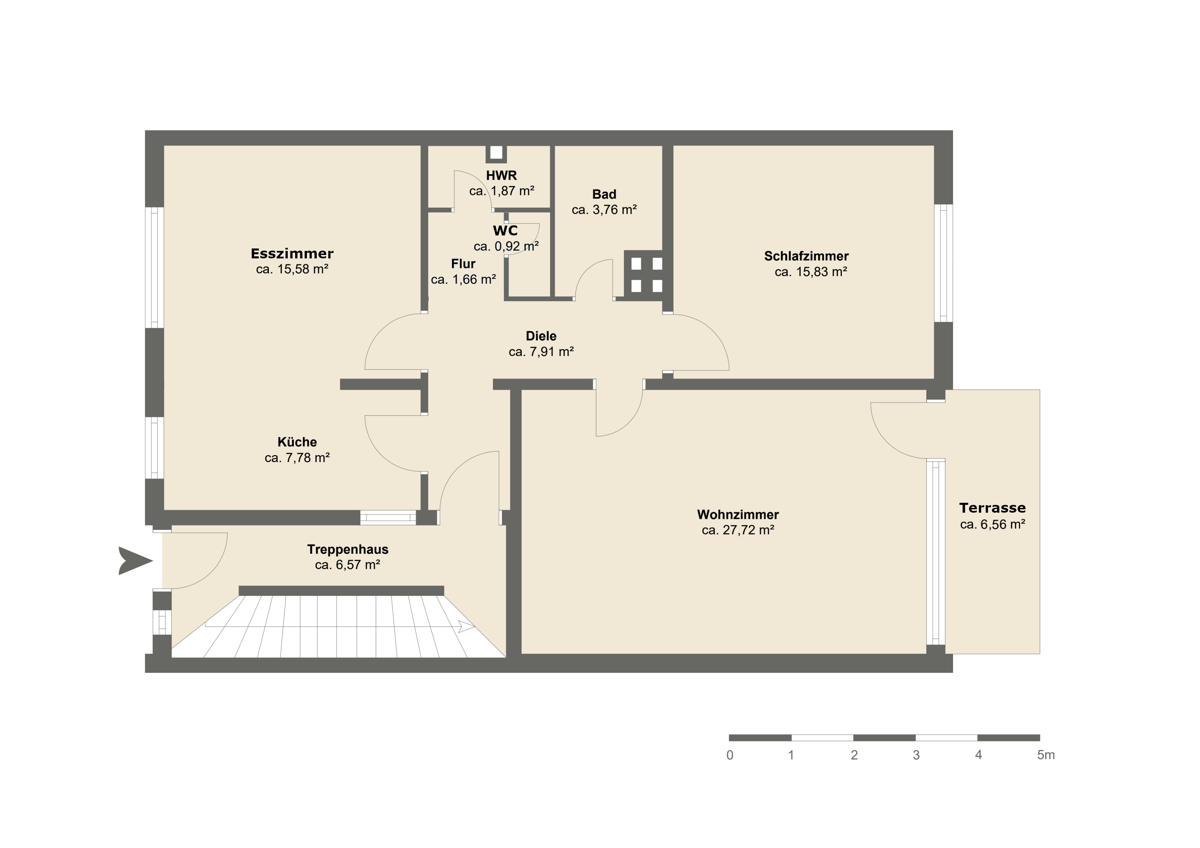
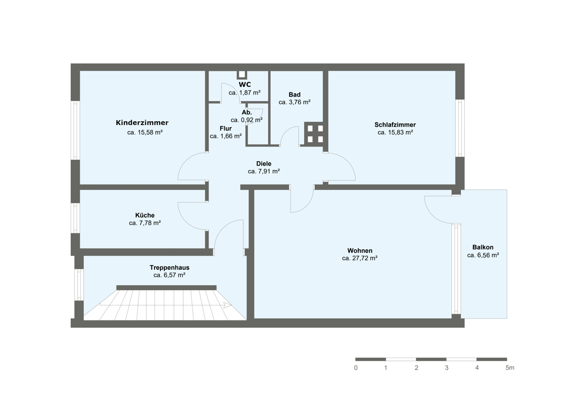
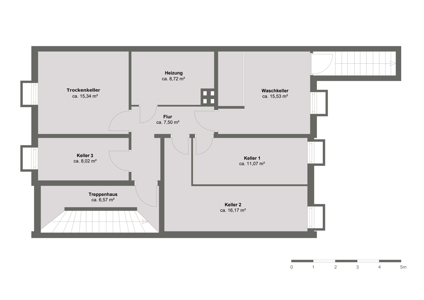
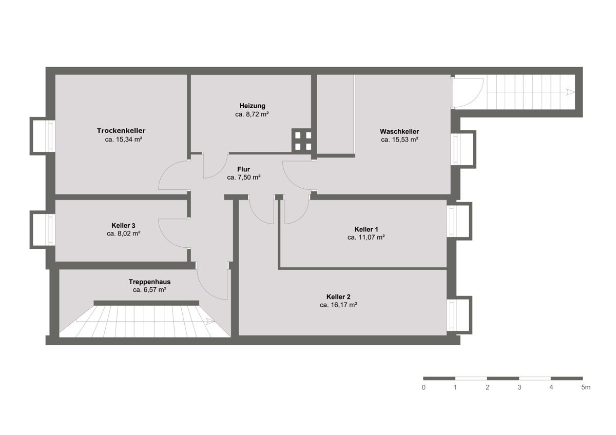
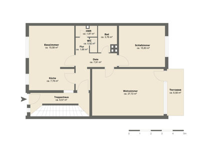
Dieses zeitlos weiß verputzte Reihenmittelhaus überzeugt durch seine klare Struktur, gepflegte Erscheinung und attraktive Nutzungsmöglichkeiten. Die Immobilien umfasst insgesamt drei Wohnungen, die derzeit vollständig vermietet sind und eine jährliche Kaltmiete von 16.783,20 € erzielen – eine solide Grundlage für eine nachhaltige Kapitalanlage. Die beiden größeren Einheiten im Erd- und Obergeschoss verfügen jeweils über ca. 85 m² Wohnfläche und bieten drei gut geschnittene Zimmer. Im Dachgeschoss stehen gemütliche ca. 47 m² zur Verfügung. Das Erdgeschoss punktet mit einer gemütlichen Terrasse und einem liebevoll angelegten Garten. Das Obergeschoss bietet stattdessen einen sonnigen Balkon. Alle drei Wohnungen befinden sich in einem sehr gepflegten Zustand. Die hellen, weiß gefliesten Tageslichtbäder sorgen für eine angenehme Wohnqualität. Dank separater Verbrauchszähler erfolgt die Betriebskostenabrechnung verbrauchsabhängig – komfortabel und fair für Eigentümer und Mieter.Lage
Im beliebten Stadtteil Schuckenbaum befindet sich dieses Reihenmittelhaus in ruhiger Lage. Einkaufsmöglichkeiten, Schulen, Ärzte und Freizeitangebote sind schnell erreichbar und sorgen für eine gute Versorgung im Alltag. Durch die günstige Anbindung an den öffentlichen Nahverkehr sowie an die umliegenden Städte wie Bielefeld, Lage und Oerlinghausen ist Leopoldshöhe besonders attraktiv. Die Umgebung bietet zudem viele Grünflächen und Wege für Spaziergänge und Erholung. Eine ruhige Wohnlage mit guter Infrastruktur – ideal für verschiedene Lebenssituationen.Energieausweis
Energieausweis:Bedarfsausweis
gültig bis: 29.10.2035
Endenergiebedarf: 209 kWh/(m²a)
Energieträger: Gas
Effizienzklasse: G
Bj. Heizung: 1998

Wissenswertes
Ob als dauerhaft sichere Kapitalanlage oder zur späteren Eigennutzung mit zusätzlich vermietbaren Einheiten – dieses Objekt bietet Ihnen vielseitige Perspektiven. Aufgrund der langjährigen Mietverhältnisse betragen die gesetzlichen Kündigungsfristen für den Vermieter in allen drei Wohnungen jeweils 9 Monate – für das Erdgeschoss (Mietbeginn 1982), das 1. Obergeschoss (2016) sowie das Dachgeschoss (2004).Das Angebot ist freibleibend. Alle Angaben beruhen auf Aussagen des Verkäufers. Für die Richtigkeit übernehmen wir keine Gewähr. Zwischenverkauf vorbehalten.
Bitte beachten Sie, dass wir Ihnen das Exposé mit Adresse nur zusenden können, wenn uns Ihre vollständigen Kontaktdaten (Name, Adresse, Tel. Nr.) vorliegen. Vielen Dank für Ihr Verständnis!



