Zurück zu den Immobilien

Stylisch, barrierefrei, Erstbezug! Attraktive 3-Zimmer-Mietwohnung

Titelbild Foto Foto Foto Foto Foto Foto Foto Foto Foto Foto Foto Foto Foto Foto Foto Foto Foto FotoGrundriss Foto

Kaltmiete

1.300 €

Wohnfläche

93 m²

Lage

BI-Senne

Kaltmiete1.300 €
Nebenkosten240 €
Gesamtmiete1.580 €
Kaution3 Kaltmieten
Wohnfläche93 m²
KellerJa
Zimmer3
Badezimmer1
Baujahr2025
StellplatzartAußenstellplatz
Stellplatzmiete40 €
Etage im ObjektOG rechts
Anzahl Wohneinheiten6
AusrichtungSüdwest
HeizungsartLuft-Wasser-Wärmepumpe

Beschreibung

Erstbezug in stylischer Neubauwohnung mit "KfW 40 EE Standard", Terrasse & Garten oder großzügigem Balkon. Hochwertige Ausstattung in moderner Architektur, Komfort durch Barrierefreiheit und eine ausgezeichnete Energieeffizienz. Ideal für alle, die Wert auf Qualität, Design und geringe Nebenkosten legen.

Technische Highlights im Überblick:
- Modernste Haustechnik und optimale Wärmedämmung
- Personenaufzug auf jede Ebene
- PV-Anlage
- Luft-Wasser-Wärmepumpe
- Fußbodenheizung
- 3-Fach-Wärmefunktions- und Isolierverglasung
- elektrische Raffstores an allen Fenstern

Helles und offenes Wohnkonzept: Der großzügige Wohn- Ess- und Kochbereich mit direktem Zugang zur Terrasse mit Gartenanteil schafft Lebensqualität. Das Schlafzimmer lässt sich perfekt möblieren und das dritte Zimmer bietet weitere, vielseitige Nutzungsmöglichkeiten als Büro, Gäste- oder Kinderzimmer.

Wohndetails und Ausstattungsmerkmale:
- Fester Kfz-Stellplatz vor dem Haus
- Hochwertiger und pflegeleichter Vinylboden sowie großformatige Fliesen
- Bodentiefe Fenster
- Stilvolles Bad mit ebenerdiger Dusche
- Gäste WC
- Eigener Kellerraum

Diese Wohnung bietet nicht nur ein modernes und stilvolles Ambiente, sondern überzeugt auch durch ihre energetische Bauweise und ihre durchdachte Ausstattung – ideal für alle, die Nachhaltigkeit mit Wohnkomfort verbinden möchten.

Lage

Eine ruhige, gut angebundene Wohnlage im Herzen von Bielefeld-Senne – ideal für alle, die Wert auf eine zentrale, aber friedliche Wohnumgebung legen. Direkt am Schopenhauerweg finden Sie eine Kombination aus Nähe zur Innenstadt, zuverlässiger Infrastruktur und einer komfortablen Wohnqualität, die sowohl junge Berufstätige als auch Seniorinnen und Senioren schätzen.

Ausgezeichnete ÖPNV-Anbindung: Buslinie 135 mit Verbindungen in die City, zu Arbeitsplätzen, Universität und Ärzten – kurze Wege, verlässliche Taktzeiten und einfache Erreichbarkeit.

Gesundheitsversorgung in der Nähe: Ärzte, Apotheken und medizinische Dienstleistungen sind fußläufig oder in kurzer Fahrdistanz erreichbar – Sicherheit und Komfort im Alltag.

Einkaufen vor Ort: Supermärkte, Drogerien und Nahversorger in unmittelbarer Umgebung – gängige Dinge des täglichen Bedarfs schnell erledigt.

Ruhiges Wohnumfeld mit Stadtnähe: Ein souveräner Mix aus ruhigen Wohnstraßen und urbanem Zugang – ideal für ungestörte Rückzugszeiten nach dem Arbeitstag oder am Wochenende.

Vielfältige Freizeit- und Erholungsmöglichkeiten: Grünflächen und der Teutoburger Wald in der Nähe laden zu Spaziergängen, Bewegung an der frischen Luft oder zu sportlichen Herausforderungen ein.

Schnittstellen für Beruf und Familie: Gute Verkehrsanbindungen erleichtern Pendeln und Wegzeiten, damit mehr Zeit für Familie, Freunde oder persönliche Belange bleibt.

Energieausweis

Energieausweis:Bedarfsausweis

gültig bis: 18.07.2035

Endenergiebedarf: 16,4 kWh/(m²a)

Energieträger: Strom-Mix

Effizienzklasse: A+

Bj. Heizung: 2025

Energieausweis Skala
Energieausweis Zeiger

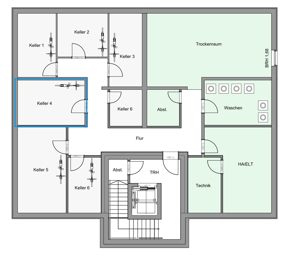
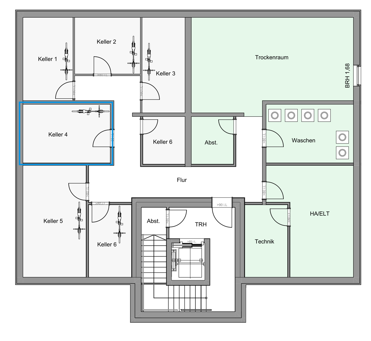
Grundriss

Wissenswertes

Im Keller stehen der Wohngemeinschaft ein Trocken- und Waschkeller mit entsprechendem Waschmaschinenanschluss zur Verfügung. Wasseruhren und Wärmemengenzähler versprechen eine verbrauchsabhängige Abrechnung. Überzeugen Sie sich selbst von der Attraktivität bei einem Besichtigungstermin, wir freuen uns auf Ihre Kontaktaufnahme.

Das Angebot ist freibleibend. Alle Angaben beruhen auf Aussagen des Vermieters. Für die Richtigkeit übernehmen wir keine Gewähr. Zwischenverkauf vorbehalten.

Exposé anfordern

Deine Anfrage zu der Immobilie „Stylisch, barrierefrei, Erstbezug! Attraktive 3-Zimmer-Mietwohnung“ (TF598)


Ich habe die Datenschutzerklärung zur Kenntnis genommen und stimme in die Verarbeitung meiner personenbezogenen Daten über die hier gestellte Anfrage hinaus zum Zweck der Kontaktaufnahme per Telefon und/oder E-Mail und zur Zusendung weiterer Informationen zu Immobilienangeboten und den Angeboten der Immobilienfirmengruppe Am Buschkamp Immobilien zu. Mir ist bekannt, dass ich diese Einwilligung jederzeit gegenüber der Firmengruppe Am Buschkamp Immobilien widerrufen kann.

Ansprechpartner

Filiale Bielefelder Süden

Osningstraße 481 33659 Bielefeld

Telefon: 0521 / 959 08 0 info@am-buschkamp.de